DOM Z WIDOKIEM

Dom z widokiem na Babią Górę, piękna lokalizacja. Budynek jest murowany, wykończony deską elewacyjną zarówno na ścianach jak i na dachu.

zdjęcie z budowy

zdjęcie z budowy

zdjęcie z budowy

zdjęcie z budowy

zdjęcie z budowy

zdjęcie z budowy

zdjęcie z budowy

zdjęcie z budowy

zdjęcie z budowy

zdjęcie z budowy

zdjęcie z budowy

zdjęcie z budowy

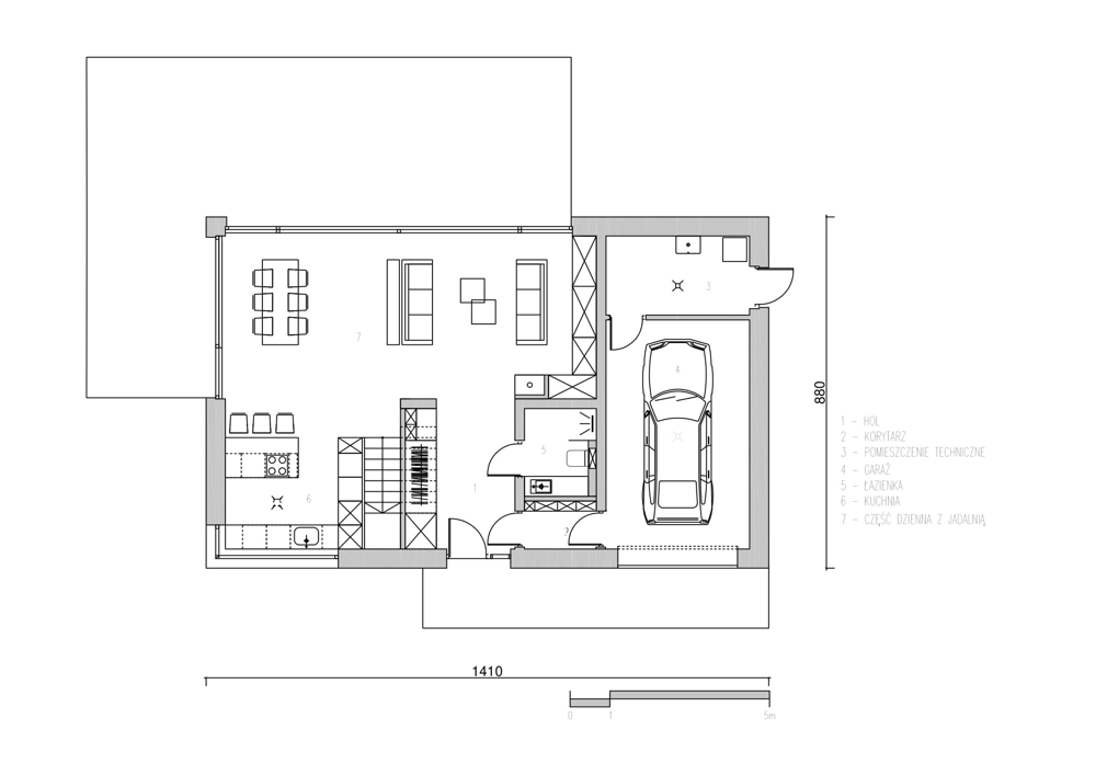
Rzut parteru

Rzut parteru

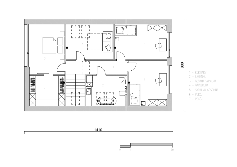
Rzut poddasza

Rzut poddasza