DOM Z CZARNĄ ELEWACJĄ

Dom własny w Trachach zaprojektowany z pomieszczeniem biurowym na parterze i przestrzenią do pracy na poddaszu dla dwóch osób pracujących w domu.

zdjęcia po zakończeniu budowy

zdjęcia po zakończeniu budowy

zdjęcia po zakończeniu budowy

zdjęcia po zakończeniu budowy

zdjęcia po zakończeniu budowy

zdjęcia po zakończeniu budowy

zdjęcia po zakończeniu budowy

zdjęcia po zakończeniu budowy

widok na wnętrze

widok na wnętrze

widok na model

widok na model

widok na model

widok na model

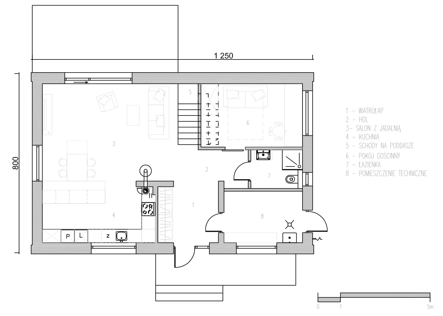
parter budynku

parter budynku

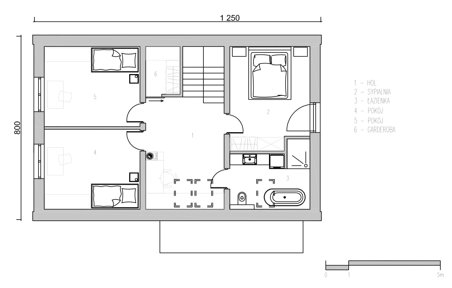
poddasze budynku

poddasze budynku