DOM Z SALĄ ZABAW / ŚWIETLICĄ

BUDYNEK ZE ŚWIETLICĄ / SALĄ ZABAW DLA OBSŁUGI DOMÓW NA WYNAJEM - budynek dwulokalowy. Na parterze zlokalizowano świetlicę / salę zabaw / ogólnodostępną kuchnię dla gości przebywających w kilku istniejących domach na wynajem w Zawoi Mosorne. Sala zabaw jest wysoka na dwie kondygnacje z widoczną ozdobną więźbą dachową, z kominkiem, ogrodem zimowym z grillem i zewnętrznym paleniskiem. Budynek wkomponowano w skarpę. Na poddaszu wydzielone mieszkanie dla właścicieli.

widok na model

widok na model

widok na model

widok na model

widok na model

widok na model

widok na model

widok na model

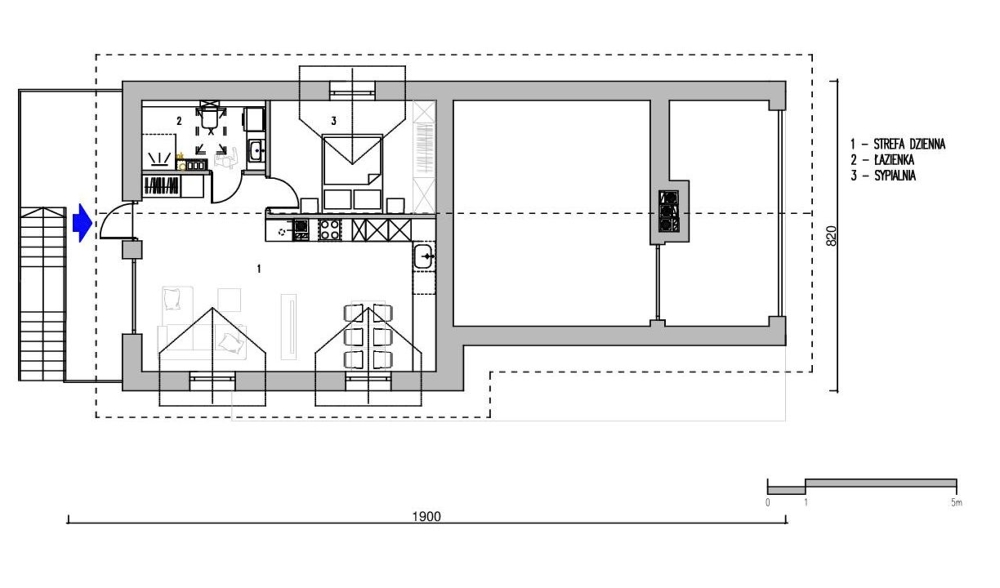
Rzut parteru

Rzut parteru

Rzut poddasza

Rzut poddasza

Przekrój

Przekrój