DOMY WŚRÓD DRZEW

Projekt nowoczesnych domów drewnianych przeszedł drobne modyfikacje i przedstawiam go w nowej odsłonie. Jest to drewniany dom, którego głównym elementem konstrukcyjnym są ramy stalowe. Domy zlokalizowano na terenie osuwiskowym. Strop – belki drewniane jest częściowo widoczny dzięki antresoli. Dach wykończony jest blachą płaską łączoną na rąbek, elewacja wykończona deską elewacyjną, ogrzewanie budynku – elektryczne + kominek rekreacyjny w części dziennej.

zdjęcie z budowy

zdjęcie z budowy

zdjęcie z budowy

zdjęcie z budowy

zdjęcie z budowy

zdjęcie z budowy

zdjęcie z budowy

zdjęcie z budowy

zdjęcie z budowy

zdjęcie z budowy

widok na model budynku

widok na model budynku

widok na model budynku

widok na model budynku

Rzut parteru

Rzut parteru

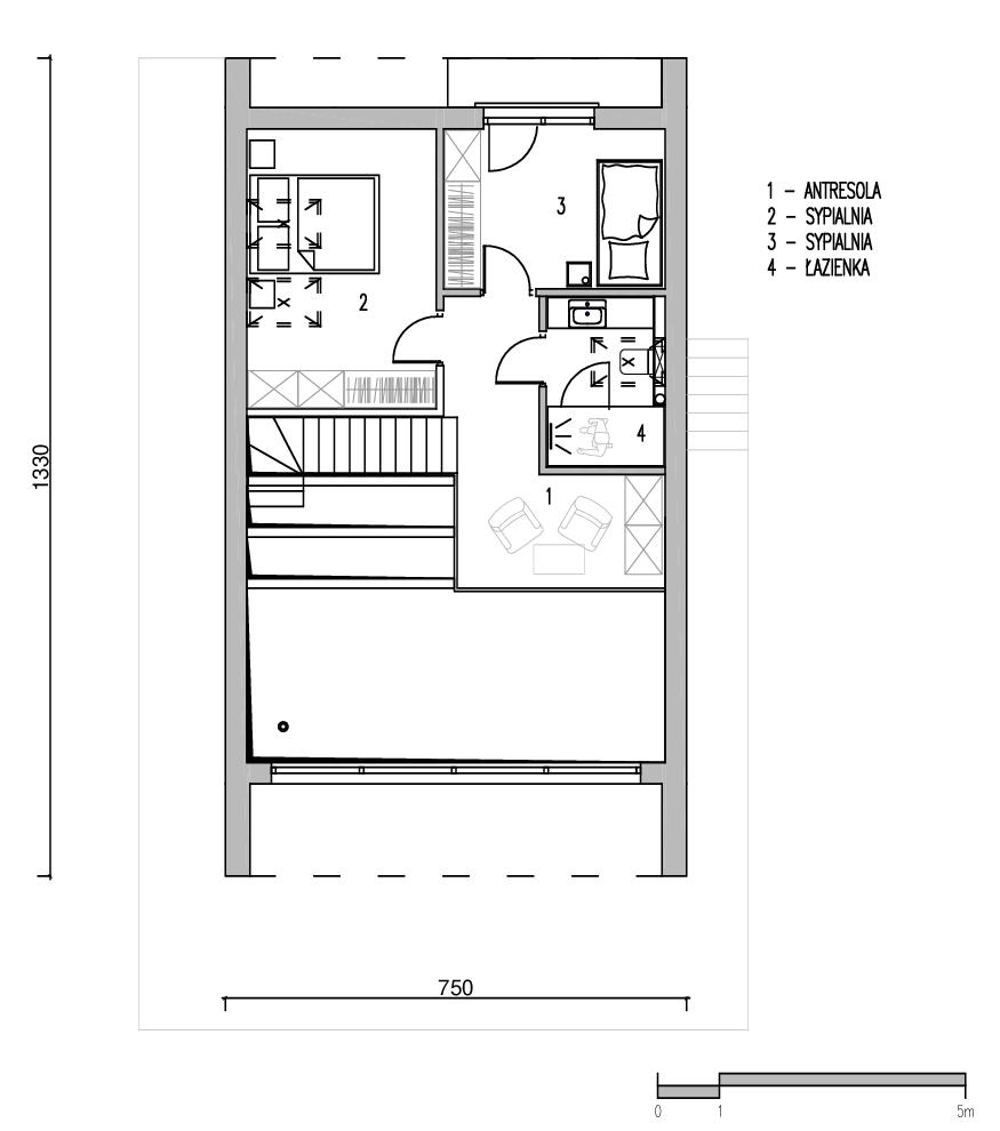
Rzut poddasza

Rzut poddasza

Przekrój przez budynek

Przekrój przez budynek