DOM NA ZGŁOSZENIE - 70M2

Projekt nowoczesnego domu na weekendowe wyjazdy. Dom jest murowany kryty częściowo dachem dwuspadowym, a częściowo dachem płaskim. Dom zlokalizowano w górach, ogrzewanie budynku elektryczne sterowane telefonem pozwala na zarządzanie domem na odległość. Część dzienną wyposażono w kominek rekreacyjny.

zdjęcia z budowy

zdjęcia z budowy

zdjęcia z budowy

zdjęcia z budowy

zdjęcia z budowy

zdjęcia z budowy

widok na model

widok na model

widok na model

widok na model

widok na model

widok na model

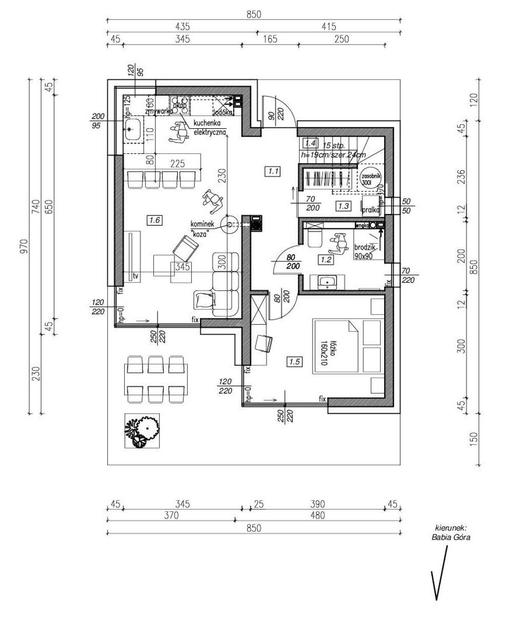
Rzut parteru

Rzut parteru

widok na model

widok na model