HALA MAGAZYNOWA

Na zlecenie inwestora zaprojektowałam halę magazynową w konstrukcji drewnianej krytej płytą warstwową. Inwestor prowadzi stolarnię, więc zależało mu na konstrukcji drewnianej, z drewna zwykłego, nie klejonego, co przy dużych rozpiętościach zaowocowało więźbą dachową z zastrzałami.

widok na model

widok na model

widok na model

widok na model

widok na model

widok na model

widok na model

widok na model

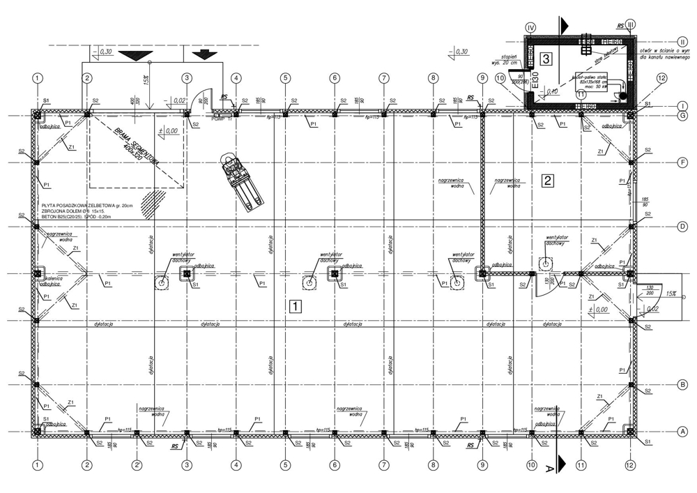
Rzut parteru

Rzut parteru

Przekrój

Przekrój