HALA PRODUKCYJNA

Inwestor – właściciel zakładu stolarskiego produkującego meble z drewna, zdecydował się na przeprojektowanie, przebudowanie i dostosowanie do wymogów prawa całego swojego zakładu. Powstał projekt hali produkcyjnej w konstrukcji stalowej z profili IPE z poszyciem z płyty warstwowej z murowanym budynkiem zaplecza, w którym na parterze zlokalizowano biuro, szatnię dla pracowników, umywalnię. Na piętrze budynku zlokalizowano mieszkanie dla właściciela zakładu. Obiekt dostosowany jest dla potrzeb osób niepełnosprawnych. Hala produkcyjna wyposażona będzie w instalację odciągu pyłu drewnianego, który zbierany będzie w silosie i przerabiany na pellet. Opracowano szereg rozwiązań zabezpieczających przed wybuchem mieszaniny pyłów drewnianych, wybuchowych. Dodatkowo zaprojektowano zbiornik na wodę do celów p.poż., drogę pożarową.

widok na model

widok na model

widok na model

widok na model

widok na model

widok na model

widok na model

widok na model

widok na model

widok na model

widok na model

widok na model

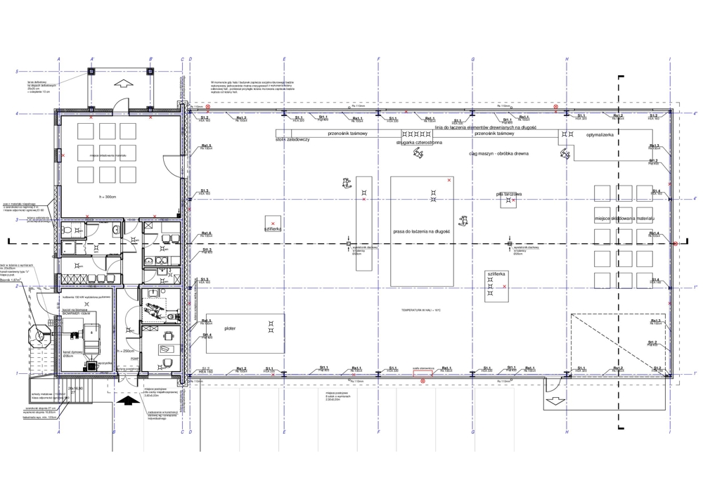
Rzut parteru

Rzut parteru

zdjęcia z budowy

zdjęcia z budowy

zdjęcia z budowy

zdjęcia z budowy

zdjęcia z budowy

zdjęcia z budowy