REZYDENCJA POD LASEM

Projekt rezydencji na ogromnej działce pod lasem. Jest to murowany dom ze stropami żelbetowymi posadowiony na płycie fundamentowej. Duże rozpiętości konstrukcji, taras na piętrze stanowiły wyzwanie również dla konstruktora – wykorzystaliśmy jego pomysły na to jak ukryć konstrukcję, aby forma budynku była jak najprostsza i pozbawiona wystających belek. Lokalizacja budynku na gruntach nienośnych stanowiła dodatkowe wyzwanie.

widok na model

widok na model

widok na model

widok na model

widok na model

widok na model

widok na model

widok na model

widok na model

widok na model

widok na model

widok na model

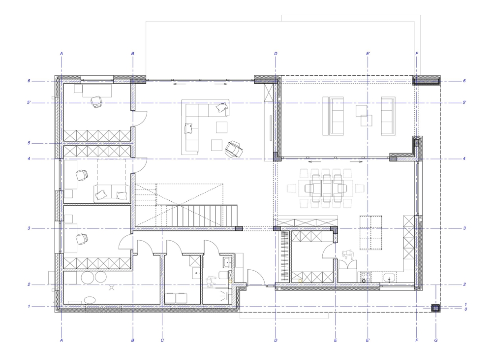
Rzut parteru

Rzut parteru

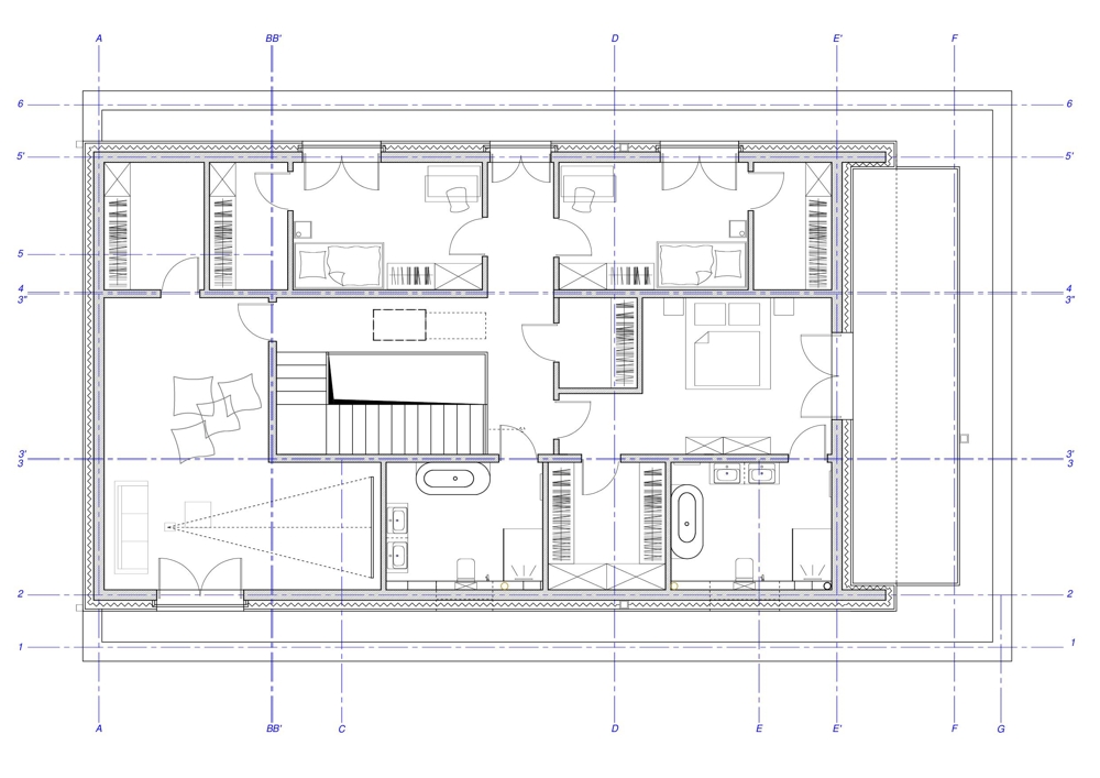
Rzut piętra

Rzut piętra

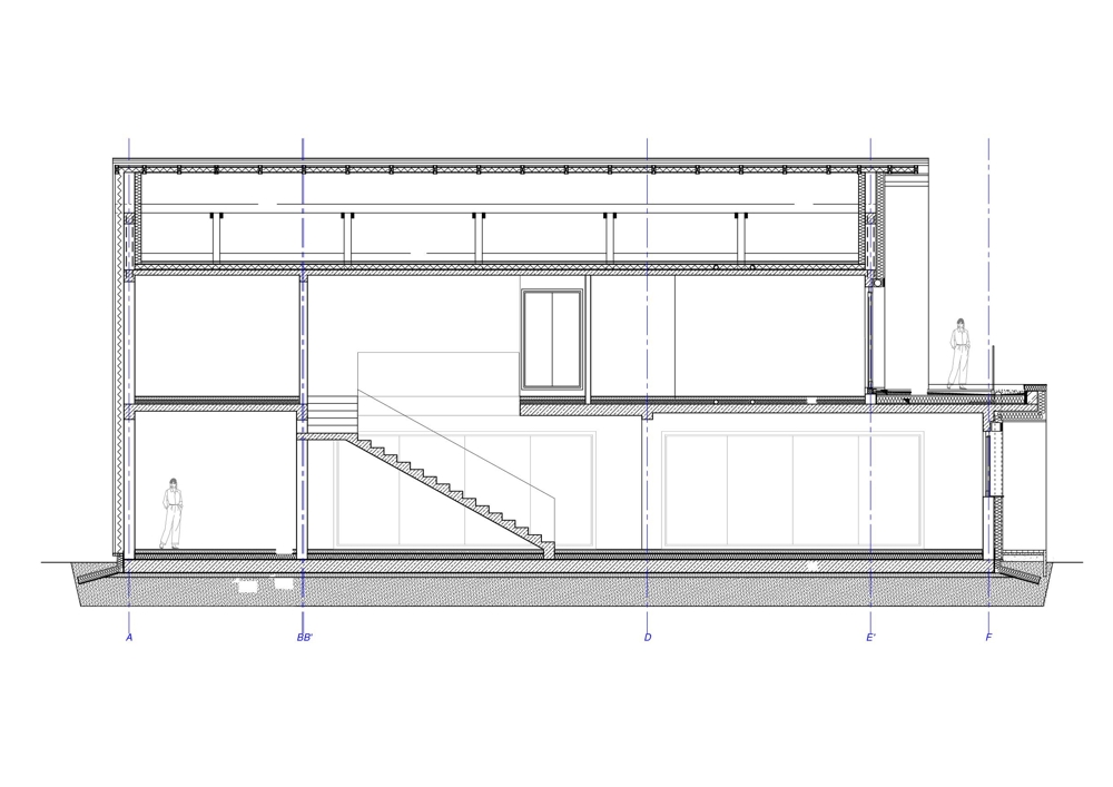
Przekrój

Przekrój

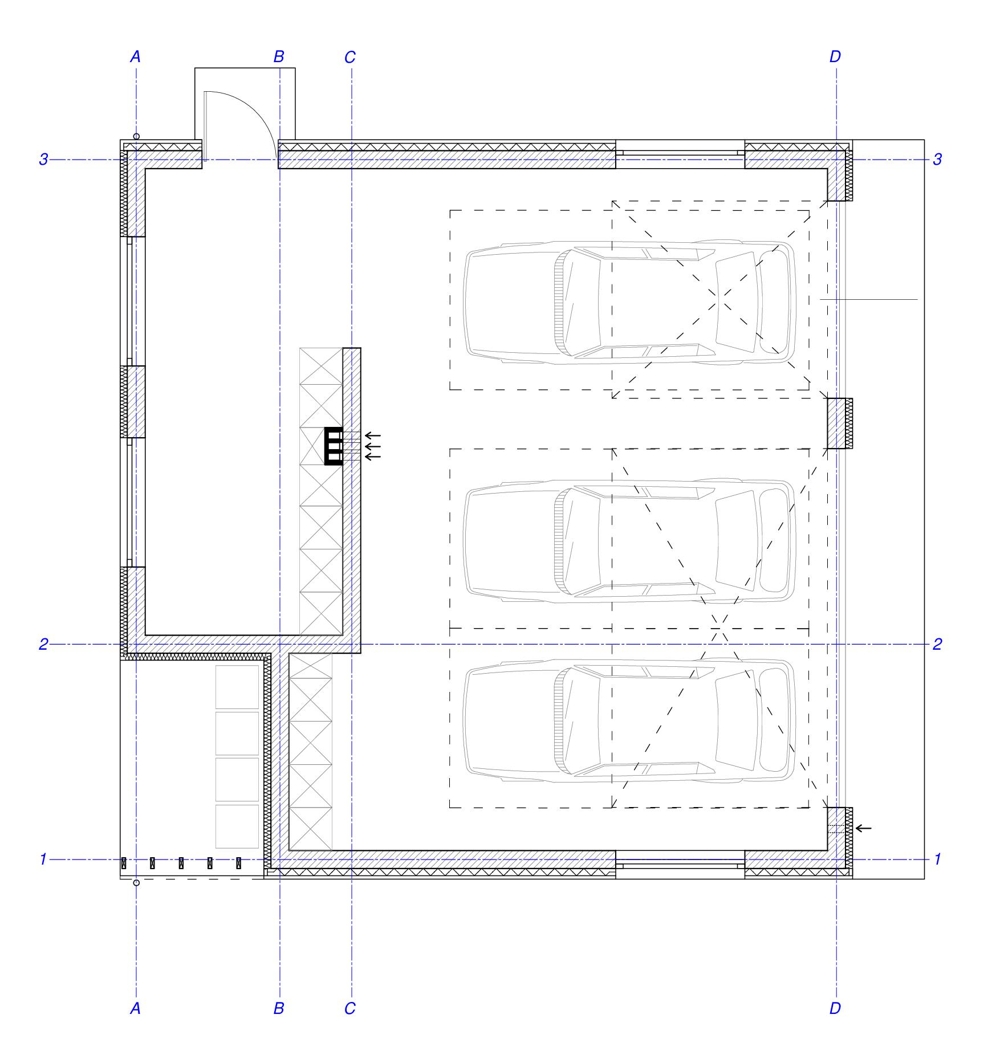
Rzut garażu

Rzut garażu