BUDYNEK USŁUGOWY

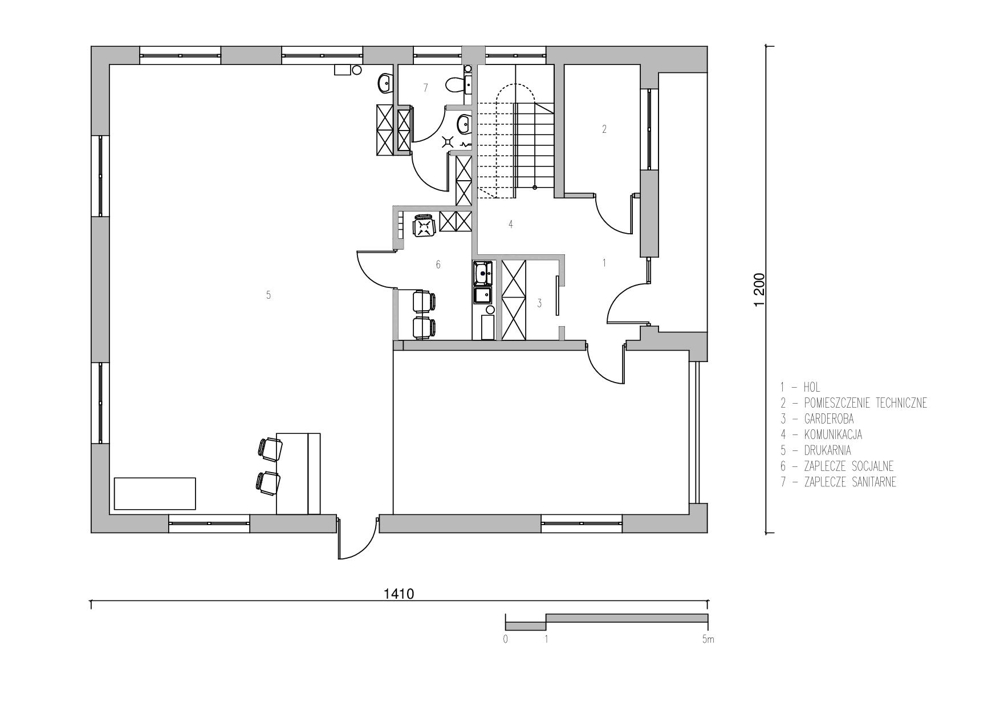
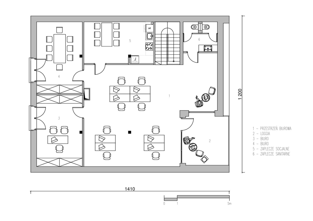
Budynek usługowy z przeznaczeniem pod drukarnię pracującą na maszynach offsetowych. To już drugi projekt tego typu budynku, w którym najważniejszą rolę stanowi dobrze zaprojektowane podłoże.  Mocowanie maszyn do podłoża następuje za pomocą kotew. W wyniku pracy maszyny mogą być generowane drgania i wstrząsy, które powodują nieczytelność druku. Na poddaszu – otwarta część biurowa do adaptacji w przyszłości.

Zdjęcie budynku

Zdjęcie budynku

widok na model

widok na model

widok na model

widok na model

widok na model

widok na model

Rzut parteru

Rzut parteru

Rzut poddasza

Rzut poddasza