DOM NA STOKU

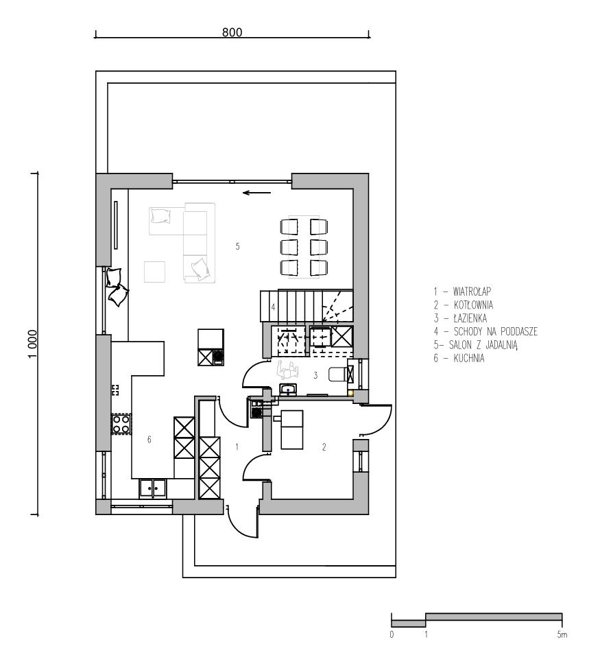
Projekt kompaktowego domu dla rodziny 2+2 o powierzchni zabudowy 80m2. Dom zlokalizowany na stromej działce, na której udało się wykonać półkę – wypłaszczenie terenu pod dom. Na parterze budynku tradycyjna kotłownia na pellet + kominek w salonie. W salonie wygospodarowano kącik do czytania książek. Lokalizacja: Zawoja.

widok na model

widok na model

widok na model

widok na model

widok na model

widok na model

widok na model

widok na model

Rzut parteru

Rzut parteru

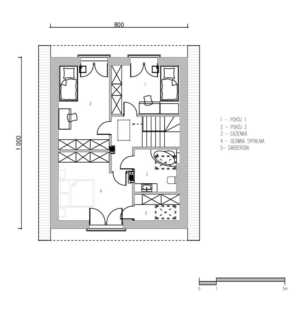
Rzut poddasza

Rzut poddasza