DOM PARTEROWY

Wygodny dom o powierzchni zabudowy 120 m2 dla rodziny 2-osobowej. Dom dla małżeństwa które niedługo przejdzie na emeryturę, a dzieci się już wyprowadziły. Dom ogrzewany pompą ciepła, dodatkowo kominek rekreacyjny w salonie. Duża strefa rekreacyjna w ogrodzie. Sam dom relatywnie tani w budowie – murowany, strop gęsto-żebrowy, kryty więźbą dachową lub wiązarami kratowymi.

zdjęcie z budowy

zdjęcie z budowy

zdjęcie z budowy

zdjęcie z budowy

widok na model

widok na model

widok na model

widok na model

widok na model

widok na model

widok na model

widok na model

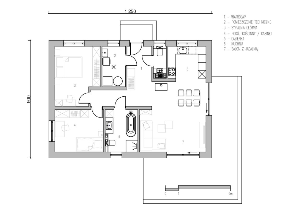
Rzut parteru

Rzut parteru