DOM PARTEROWY Z GARAŻEM

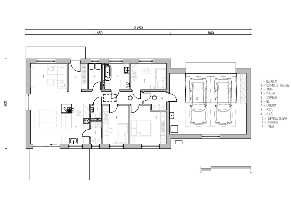
Dom o powierzchni zabudowy 130 m2 dla rodziny 4-osobowej z garażem o powierzchni 56 m2. Dom zaprojektowano na wąską działkę. Dom ogrzewany pompą ciepła, dodatkowo kominek rekreacyjny w salonie. Duża strefa rekreacyjna w ogrodzie. Sam dom relatywnie tani w budowie – murowany, strop gęsto-żebrowy, kryty więźbą dachową lub wiązarami kratowymi.

widok na model

widok na model

widok na model

widok na model

widok na model

widok na model

widok na model

widok na model

widok na model

widok na model

Rzut parteru

Rzut parteru