DOMY NA WYNAJEM

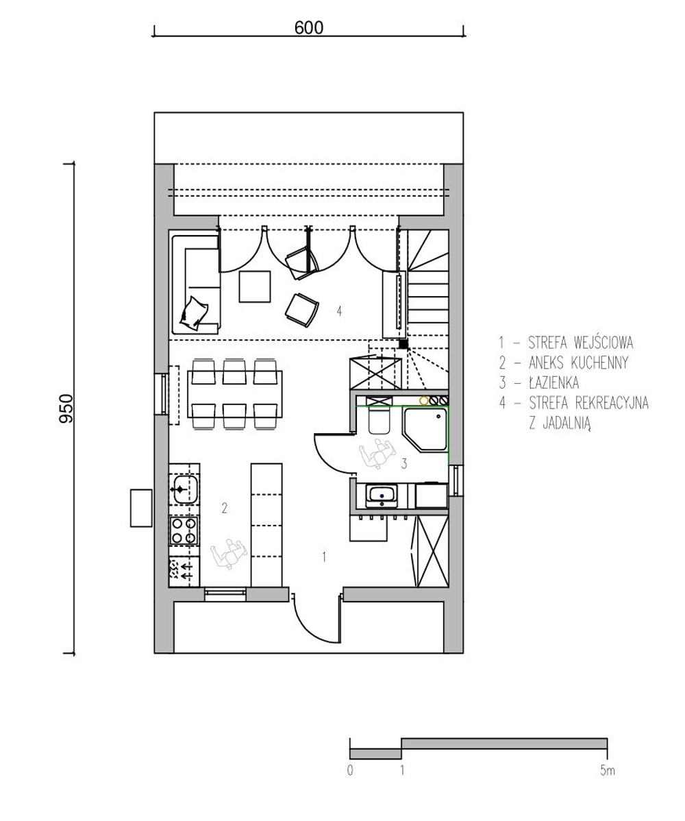
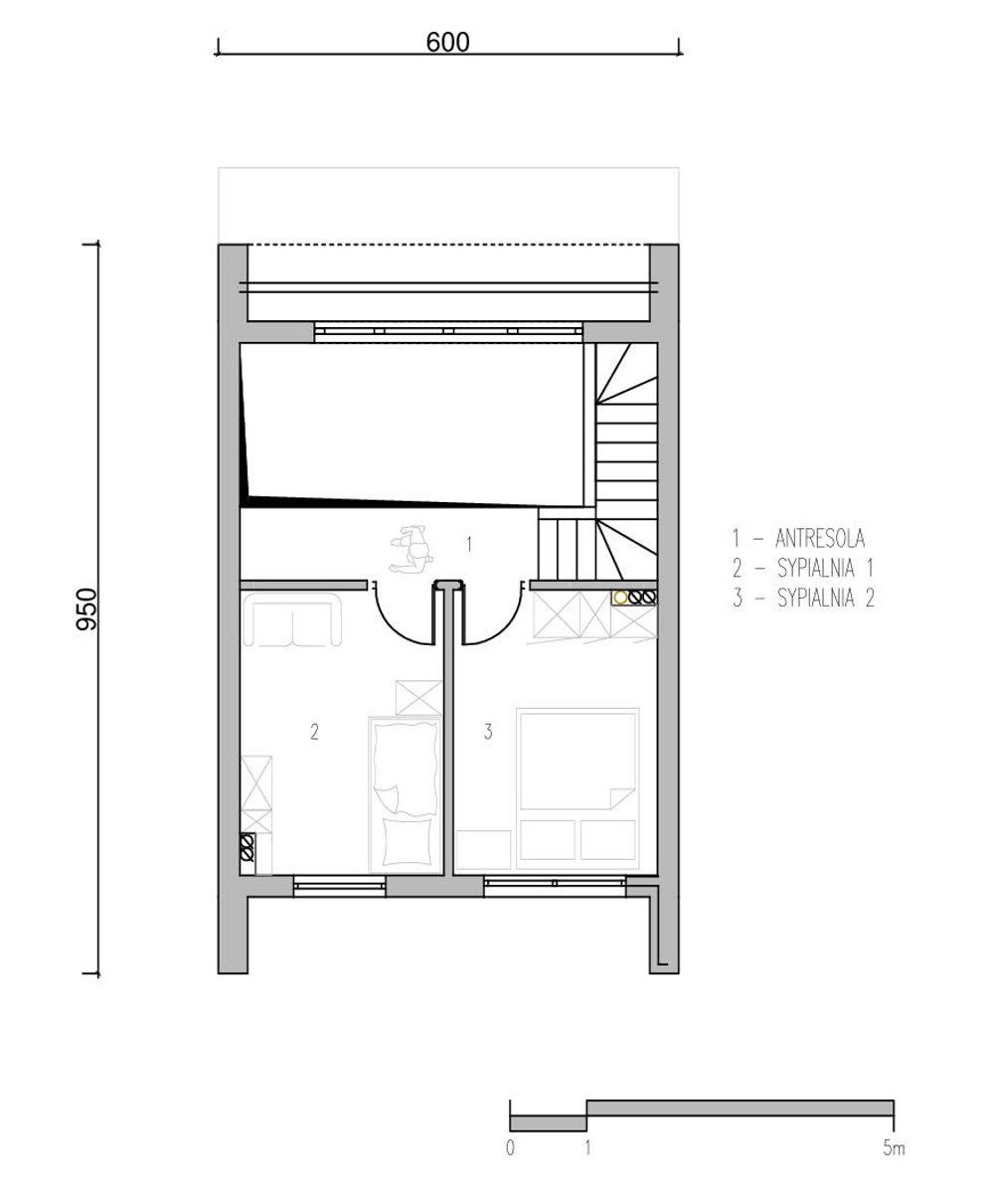
Projekt nowoczesnych domów drewnianych w konstrukcji szkieletowej przeznaczonych na wynajem zlokalizowanych w Zawoi. Inwestycja podzielona na etapy. Ważnym elementem każdego domu jest antresola, przeszklenie z widokiem na góry, miejsce na rowery. Jest to drewniany budynek. Dach wykończony jest blachą płaską łączoną na rąbek, elewacja wykończona deską elewacyjną oraz tynkiem. Na działce zlokalizowano strefy rekreacyjne dla gości.

zdjęcie z budowy

zdjęcie z budowy

zdjęcie z budowy

zdjęcie z budowy

widok na budynek

widok na budynek

widok na budynki

widok na budynki

widok na elewację z wejściem do budynku

widok na elewację z wejściem do budynku

widok na strefę rekreacyjną

widok na strefę rekreacyjną

widok na model

widok na model

podłoga z siatki na antresoli

podłoga z siatki na antresoli

Rzut parteru

Rzut parteru

Rzut poddasza

Rzut poddasza