TRADYCYJNY DOM Z BALI

Domy z bali wpisują się w tradycję budownictwa beskidzkiego. W tym przypadku powstał dom z otwartym salonem w którym zlokalizowano duże przeszklenie – wyjście na taras. Dom ogrzewany gazem z zewnętrznej instalacji gazowej.

zdjęcia z budowy

zdjęcia z budowy

zdjęcia z budowy

zdjęcia z budowy

zdjęcia z budowy

zdjęcia z budowy

zdjęcia z budowy

zdjęcia z budowy

zdjęcia z budowy

zdjęcia z budowy

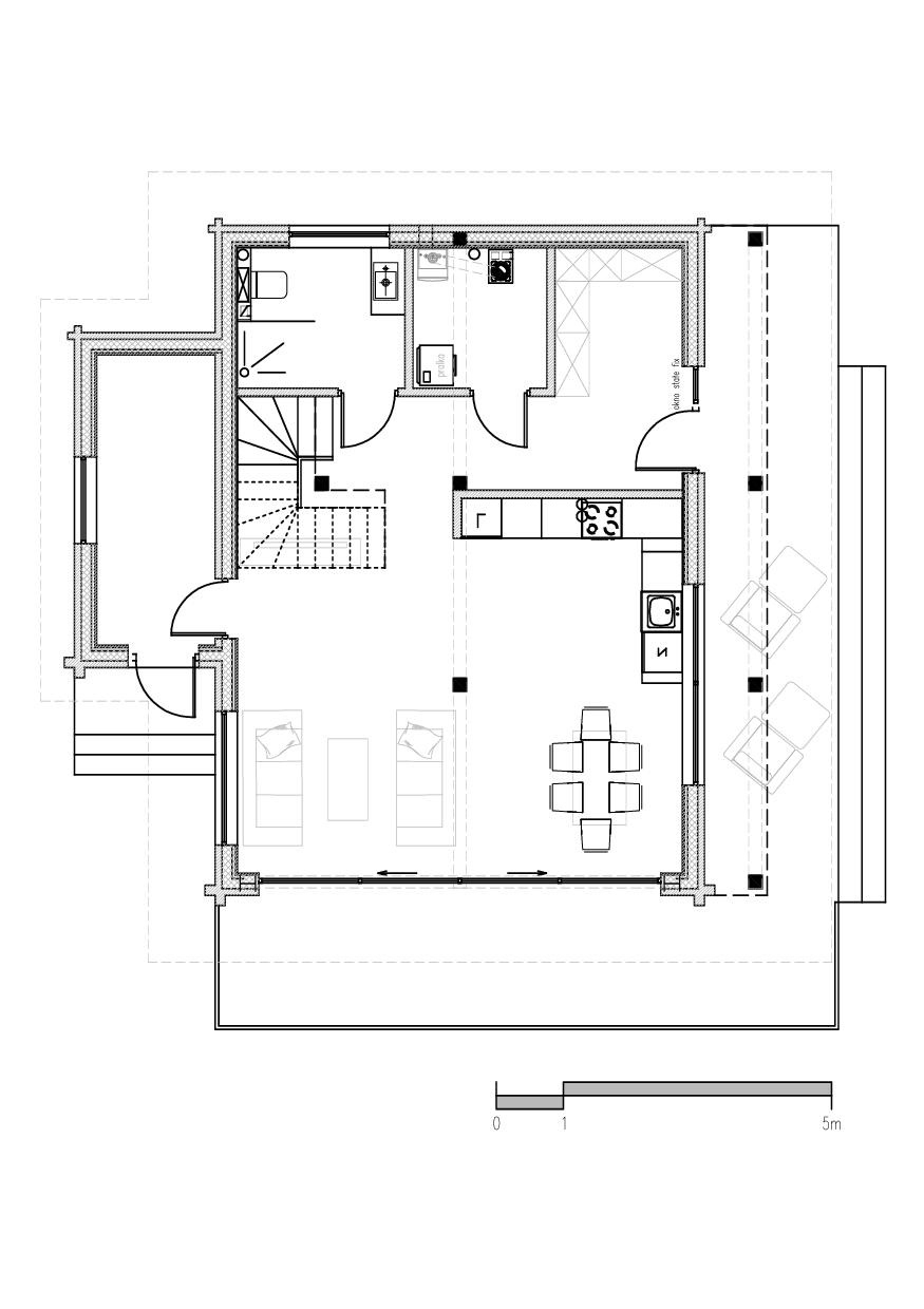
Rzut parteru

Rzut parteru

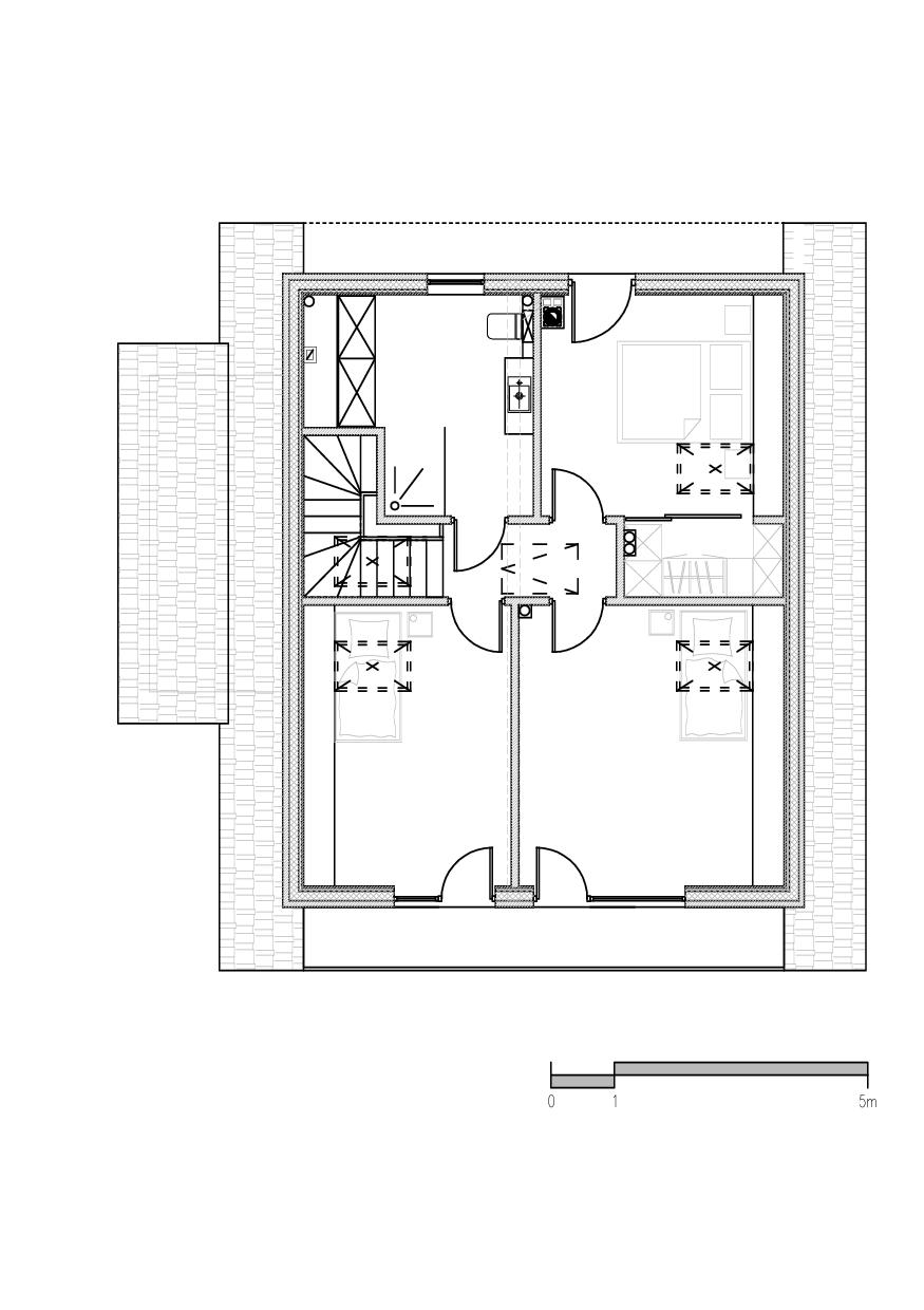
Rzut poddasza

Rzut poddasza