PROJEKT DOMU Z BASENEM

Dom jednorodzinny zaprojektowany ze skrzydłem basenowym.

widok na model

widok na model

widok na model

widok na model

widok na model

widok na model

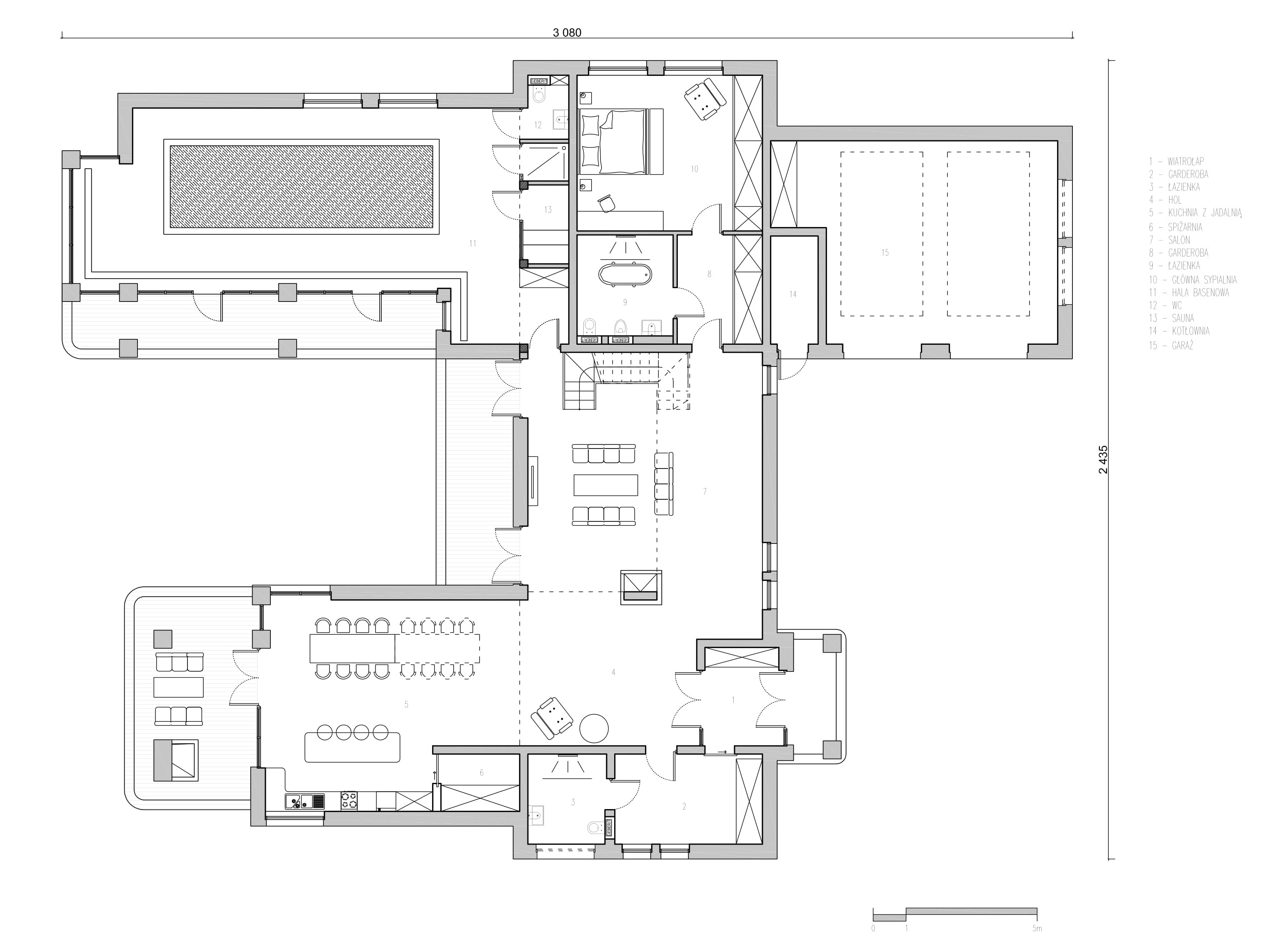
parter budynku

parter budynku

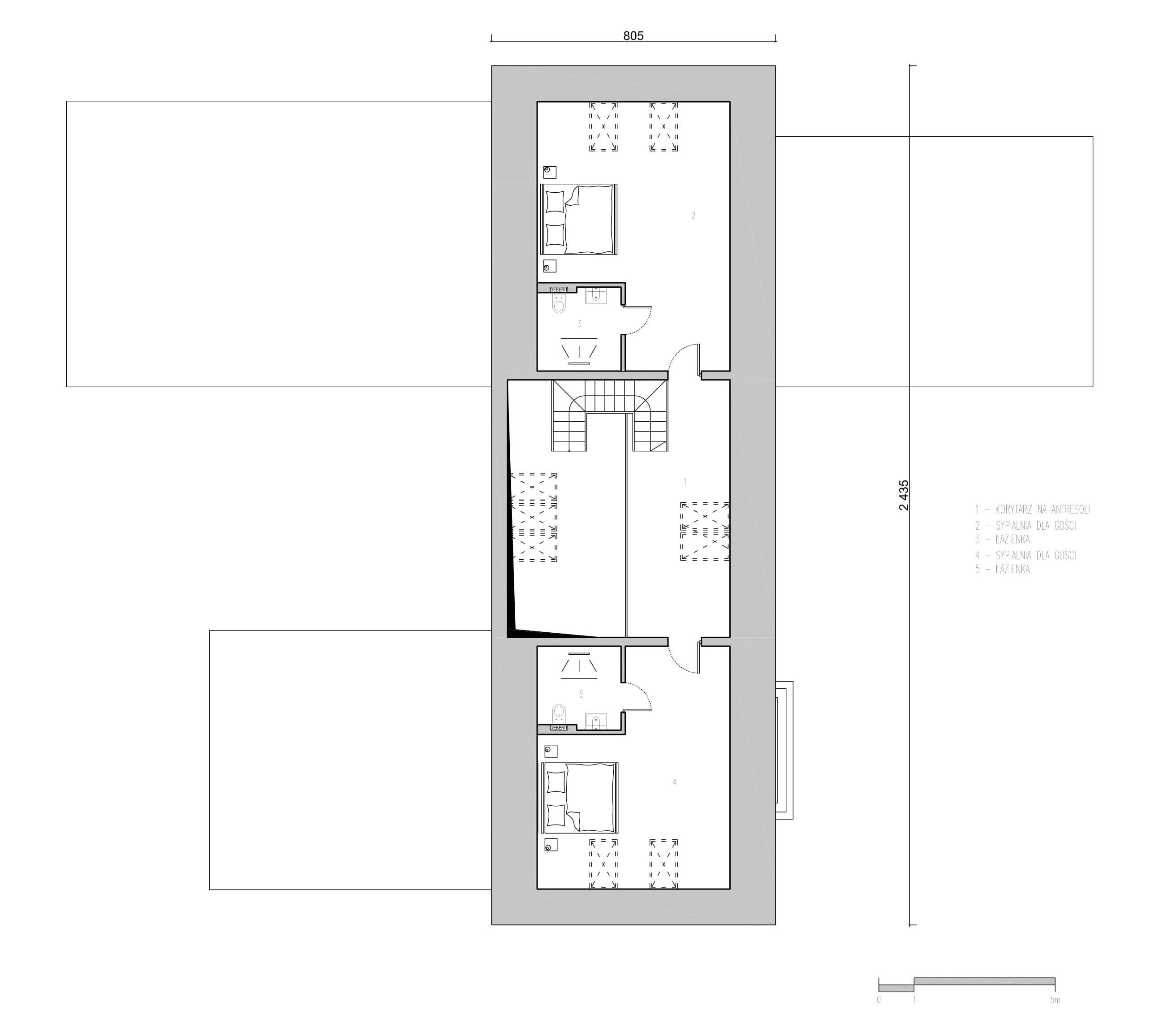
poddasze budynku

poddasze budynku

przekrój przez budynek

przekrój przez budynek