DOM - GÓRSKA OSADA

Górska osada to założenie domów w górach - w Skawicy na wynajem krótkoterminowy oraz dom jednorodzinny z budynkiem garażowym dla właściciela.

zdjęcie z budowy

zdjęcie z budowy

zdjęcie z budowy

zdjęcie z budowy

zdjęcie z budowy

zdjęcie z budowy

zdjęcie z budowy

zdjęcie z budowy

Rzut parteru

Rzut parteru

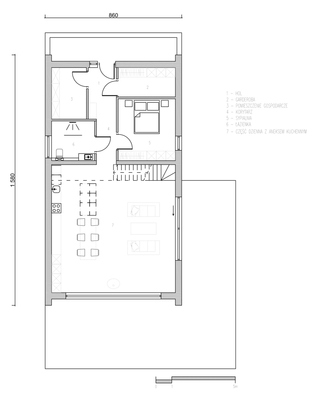
Rzut poddasza

Rzut poddasza